您的位置是:首页>房产>布里斯班

布里斯本內城核心稀缺高端公寓

类型   公寓

位置   布里斯班Newstead

价格   1,700,000起

交房   2028年底

项目介绍

特点1:內城核心生活圈

項目位於Brisbane最受矚目的內城高端區——Newstead,屬於典型的「河岸生活+城市核心」雙重價值地段。區內匯聚Brisbane最具代表性的生活地標,包括Gasworks Plaza及James Street,高端餐飲、精品購物、咖啡文化與夜生活集中於此。同時鄰近Brisbane River河岸步道與綠化空間,將城市繁華與自然景觀完美結合,打造極具質感的生活方式。

特点2:高端客群聚集 交通樞紐 便捷通達

Newstead為Brisbane高收入人群聚集區之一,區內人口以專業人士、金融及科技從業者為主,租客質素高且穩定。周邊辦公、商業及創意產業發達,長期帶動強勁租賃需求,加上內城土地供應有限,使物業具備穩定升值與抗跌能力。

項目距離Brisbane CBD僅約2公里,屬於真正「步行級」內城生活圈。周邊交通網絡完善,步行可達Fortitude Valley及Bowen Hills火車站,多條巴士路線覆蓋全城,同時鄰近CityCat渡輪碼頭,輕鬆連接South Bank及各大核心區域。未來隨著Brisbane Metro及Cross River Rail的落成,整體通勤效率將進一步提升,區域價值持續升級。

特点3:完善教育資源

項目位處Brisbane內城優質教育圈,匯聚昆士蘭州最具代表性的頂尖學府,為自住家庭及投資客提供長遠價值支撐。

▪️ Brisbane Grammar School
昆士蘭歷史最悠久的男子私校之一,學術成績長期穩居全州前列,被公認為「昆州No.1男子名校」。學校以嚴謹學術體系及卓越升學率著稱,畢業生多升讀澳洲八大名校及海外頂尖大學。

▪️ Brisbane Girls Grammar School
全澳最頂尖女子學校之一,學術排名常年位居昆士蘭前列(Top 1 / Top 2),以優異的ATAR成績及全面素質教育聞名,是本地及國際家庭首選。

兩大名校長期被視為昆州排名第一及第二的頂級學府,教育資源極為稀缺

同時,項目亦鄰近多所高等院校:

▪️ Queensland University of Technology(QUT)
▪️ The University of Queensland(UQ)

形成從中學到大學的一站式教育體系,為區域帶來穩定且高質素的租客來源。

對自住:子女教育一步到位
對投資:名校效應帶動租金與資產長期升值

特点4:高端度假式會所配套

項目匠心打造城市中的度假式生活空間,將「居住、休閒、社交」融為一體。位於高層的空中會所設有無邊際泳池、日光平台及BBQ聚會空間,住戶可俯瞰城市天際線,享受輕鬆愜意的生活氛圍。同時配備桑拿、休閒區及多功能社交空間,無論是日常放鬆、朋友聚會,或私人時光,都能在城市之上找到平衡節奏。在繁華都市中,打造一處真正屬於自己的「慢生活空間」

 

展开

项目图片

左右滑动加载图片,点击可放大

项目位置

Newstead為Brisbane最受歡迎的內城住宅區之一,結合商業、娛樂與生活配套,屬於典型「Live, Work, Play」生活模式。

▪️ 步行可達Gasworks Plaza及James Street
▪️ 高端餐飲、精品購物、咖啡文化集中
▪️ 鄰近Brisbane River,生活環境優越

展开

位置图

左右滑动加载图片,点击可放大

周边设施

  • 交通

    布里斯班市中心(CBD) - 約 2 公里

    布里斯班機場(Brisbane Airport) - 約 13 公里

    Fortitude Valley 火車站 - 約 1.1 公里

    Bowen Hills 火車站 - 約 1.3 公里

    South Bank 火車站 - 約 3.5 公里

    CityCat 渡輪碼頭 - 約 900 米

  • 教育

    Brisbane Grammar School - 約 3.2 公里

    Brisbane Girls Grammar School - 約 3.1 公里

    Fortitude Valley State School - 約 1.5 公里

    New Farm State School - 約 1.8 公里

    The University of Queensland - 約 6.5 公里

    Queensland University of Technology - 約 2.5 公里

  • 医疗

    Royal Brisbane and Women's Hospital - 約 2.5 公里

    St Andrew's War Memorial Hospital - 約 2.8 公里

    St Vincent's Private Hospital Brisbane - 約 3.5 公里

    Brisbane Private Hospital - 約 2.7 公里

  • 公园

    New Farm Park - 約 1.5 公里

    Waterfront Park - 約 600 米

    Brisbane Riverwalk - 約 500 米

  • 购物

    Gasworks Plaza - 約 300 米

    James Street - 約 800 米

    Emporium 商業區 - 約 700 米

    Queen Street Mall - 約 2.5 公里

展开

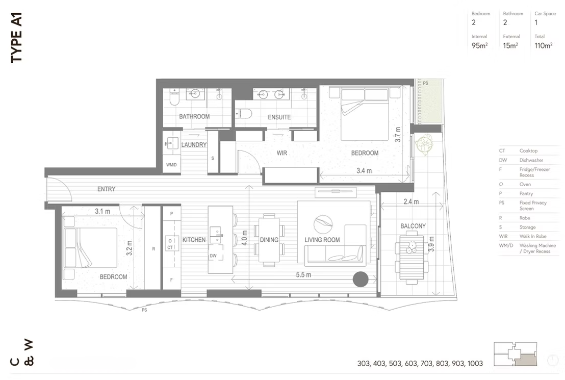
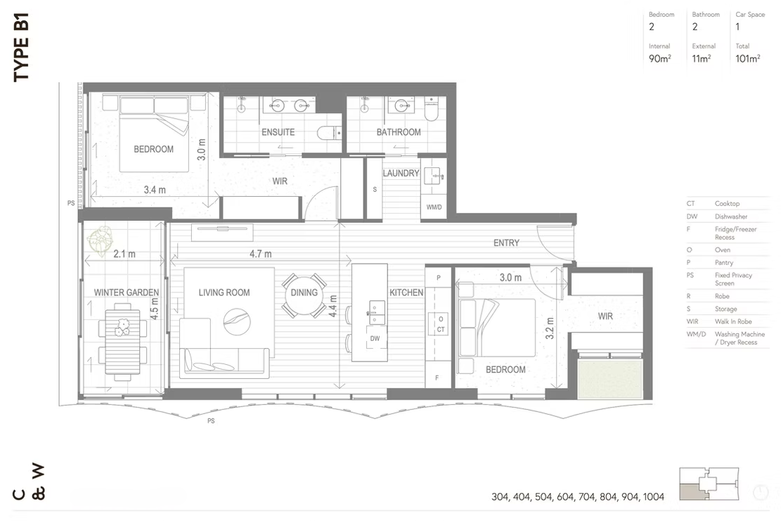
推荐户型

  • 户型一
    户型一
    2房2卫1车位
    101㎡
    170万澳元起
  • 户型二
    户型二
    2房2卫1车位
    110㎡
    180万澳元起